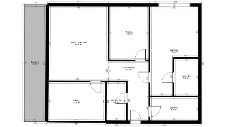
Skąd wziąć rzut mieszkania? To pytanie zadaje sobie wiele osób, które planują zakup lub remont swojego lokalu. Rzut mieszkania to niezbędny dokument, który zawiera szczegółowe informacje o układzie pomieszczeń, ich wymiarach oraz lokalizacji drzwi i okien. Istnieje wiele źródeł, z których można uzyskać rzuty mieszkań, a każda z tych metod ma swoje zalety. Warto wiedzieć, gdzie szukać, aby szybko i skutecznie zdobyć potrzebne informacje.
W artykule przedstawimy sprawdzone metody na zdobycie rzutu mieszkania, w tym kontakt z zarządcą budynku, deweloperami oraz archiwami miejskimi. Zastanowimy się również nad możliwościami samodzielnego tworzenia rzutu, korzystając z nowoczesnych narzędzi online lub tradycyjnych technik rysunkowych. Dzięki tym informacjom, każdy będzie mógł łatwo i efektywnie uzyskać potrzebny rzut swojego mieszkania.
Kluczowe wnioski:
- Rzut mieszkania można uzyskać od zarządcy budynku lub dewelopera, którzy posiadają odpowiednią dokumentację.
- W przypadku braku dokumentów, warto skorzystać z archiwów miejskich lub zlecić inwentaryzację budowlaną.
- Możliwe jest samodzielne stworzenie rzutu mieszkania za pomocą narzędzi online lub ręcznego rysowania.
- Ważne jest, aby pamiętać o prawach autorskich dotyczących istniejących rysunków.
Jak zdobyć rzut mieszkania? Sprawdzone źródła i metody
Rzut mieszkania można uzyskać z kilku wiarygodnych źródeł, które ułatwiają dostęp do potrzebnych informacji. Warto zacząć od kontaktu z zarządcą budynku lub spółdzielnią mieszkaniową, ponieważ to oni mają dokumentację architektoniczną, która zawiera rzuty lokali. W przypadku nowych nieruchomości rzuty są często dołączane do dokumentów od dewelopera, szczególnie w umowie sprzedaży. Jeśli nie posiadasz takiego dokumentu, możesz skontaktować się z administracją budynku, która powinna udostępnić rzut na wniosek właściciela w ciągu 30 dni.
Innym źródłem pozyskania rzutu mieszkania są deweloperzy, którzy często oferują rzuty w swoich materiałach promocyjnych. Warto zatem zapytać o dostępność planów przy zakupie nowego lokalu. Pamiętaj, że uzyskanie rzutu z tych źródeł jest zazwyczaj szybkie i proste, co pozwala na lepsze zaplanowanie aranżacji przestrzeni w mieszkaniu.
Kontakt z zarządcą budynku: Jak uzyskać potrzebne dokumenty
Skontaktowanie się z zarządcą budynku to kluczowy krok w procesie uzyskiwania rzutu mieszkania. Aby to zrobić, należy najpierw zidentyfikować osobę odpowiedzialną za zarządzanie nieruchomością. Można to zrobić, odwiedzając biuro zarządcy lub sprawdzając informacje na stronie internetowej budynku. Następnie warto przygotować wniosek o udostępnienie dokumentów, w którym należy wskazać, jakie dokładnie informacje są potrzebne. Warto również zaznaczyć, że zgodnie z przepisami zarządca ma obowiązek odpowiedzieć na taki wniosek w ciągu 30 dni.
- Skontaktuj się z biurem zarządcy przez telefon lub e-mail, aby uzyskać informacje o dostępności rzutu.
- Przygotuj wniosek, w którym dokładnie opisz, jakie dokumenty chcesz otrzymać.
- Upewnij się, że masz przy sobie dane identyfikacyjne, które mogą być wymagane do potwierdzenia twojego statusu jako właściciela lokalu.
Rzuty mieszkań od deweloperów: Gdzie je znaleźć i co zawierają
Aby uzyskać rzut mieszkania od dewelopera, warto zacząć od odwiedzenia biura sprzedaży konkretnej inwestycji. Deweloperzy zazwyczaj udostępniają rzuty mieszkań w materiałach promocyjnych, takich jak broszury czy na stronach internetowych. Warto zadać pytania dotyczące dostępnych mieszkań oraz szczegółów technicznych, które mogą być istotne przy podejmowaniu decyzji. Rzuty mieszkań zazwyczaj zawierają informacje o układzie pomieszczeń, ich wymiarach oraz lokalizacji drzwi i okien, co jest niezwykle pomocne przy planowaniu aranżacji wnętrza.
Niektóre deweloperzy oferują także możliwość obejrzenia mieszkań pokazowych, co pozwala na lepsze zrozumienie przestrzeni. Warto pamiętać, że rzuty mieszkań mogą się różnić w zależności od etapu budowy, dlatego istotne jest, aby sprawdzić aktualne plany. Zawsze warto poprosić o aktualizacje i upewnić się, że rzuty odpowiadają rzeczywistości w danym momencie.
| Deweloper | Typy mieszkań |
| Deweloper A | 1-3 pokoje, rzuty dostępne online |
| Deweloper B | 2-4 pokoje, rzuty w broszurach i na stronie |
| Deweloper C | Studio, rzuty w biurze sprzedaży |
Archiwa miejskie i powiatowe: Jakie dokumenty można tam znaleźć
W archiwach miejskich i powiatowych można znaleźć różnorodne dokumenty dotyczące budynków, w tym rzuty mieszkań. W szczególności archiwa te przechowują projekty budowlane, które są niezbędne do zrozumienia układu pomieszczeń w danym lokalu. Aby uzyskać dostęp do tych dokumentów, należy złożyć odpowiedni wniosek, który zazwyczaj można złożyć osobiście lub online. Warto również przygotować dane identyfikacyjne budynku, takie jak numer działki czy adres, co ułatwi pracownikom archiwum szybkie zlokalizowanie potrzebnych informacji.
Dokumenty dostępne w archiwach mogą obejmować nie tylko rzuty mieszkań, ale także pozwolenia na budowę, inwentaryzacje budowlane oraz inne materiały, które mogą być pomocne w procesie planowania remontów lub zakupów. Pamiętaj, że dostępność dokumentów może się różnić w zależności od lokalizacji i okresu archiwizacji, dlatego warto wcześniej skontaktować się z danym archiwum, aby uzyskać szczegółowe informacje.
Inwentaryzacja budowlana: Kiedy warto z niej skorzystać
Inwentaryzacja budowlana to proces, który pozwala na dokładne odtworzenie rzutu mieszkania na podstawie pomiarów przeprowadzonych przez specjalistów. Warto z niej skorzystać, gdy rzut mieszkania jest niekompletny lub nie odpowiada rzeczywistości, na przykład po przeprowadzonych remontach. Taka inwentaryzacja jest szczególnie przydatna w przypadku budynków starszych, gdzie dokumentacja architektoniczna może być nieaktualna lub nieosiągalna. Aby zainicjować inwentaryzację, należy skontaktować się z firmą zajmującą się takimi usługami, która przeprowadzi pomiary i przygotuje odpowiednią dokumentację.
- Firma A - oferuje inwentaryzację budowlaną oraz przygotowanie rysunków technicznych na zlecenie.
- Firma B - specjalizuje się w inwentaryzacjach dla budynków jednorodzinnych i wielorodzinnych.
- Firma C - zapewnia szybkie terminy realizacji oraz konkurencyjne ceny za usługi inwentaryzacji.

Tworzenie rzutu mieszkania samodzielnie: Narzędzia i porady
Tworzenie rysunku mieszkania samodzielnie stało się prostsze dzięki nowoczesnym narzędziom online oraz dostępności aplikacji. Istnieje wiele programów, które umożliwiają łatwe projektowanie rzutu mieszkania, oferując intuicyjny interfejs i różnorodne funkcje. Dzięki nim można szybko stworzyć wizualizację przestrzeni, co jest szczególnie przydatne dla osób planujących remont lub aranżację wnętrza. Warto zapoznać się z różnymi opcjami, aby wybrać narzędzie, które najlepiej odpowiada indywidualnym potrzebom.
Oprócz narzędzi online, można również skorzystać z tradycyjnych technik rysunkowych. Wystarczy papier milimetrowy, ołówek oraz linijka, aby ręcznie narysować rzut mieszkania. Przy takim podejściu ważne jest, aby dokładnie zmierzyć wymiary pomieszczeń i uwzględnić lokalizację drzwi oraz okien. Ręczne rysowanie pozwala na większą swobodę twórczą i umożliwia lepsze zrozumienie przestrzeni. Warto pamiętać, że niezależnie od metody, kluczowe jest, aby rysunek był dokładny i czytelny.
Online narzędzia do projektowania: Jak je wykorzystać efektywnie
Wśród popularnych online narzędzi do projektowania rzutu mieszkania można wyróżnić kilka, które są szczególnie cenione przez użytkowników. Programy takie jak Archiplaner, RoomSketcher czy Sweet Home 3D oferują różnorodne funkcje, takie jak możliwość tworzenia 3D, dodawania mebli oraz wizualizacji kolorów. Użytkownicy mogą łatwo przeciągać i upuszczać elementy, co sprawia, że proces projektowania jest szybki i intuicyjny. Warto również zwrócić uwagę na możliwość współpracy z innymi użytkownikami oraz udostępniania projektów online, co ułatwia konsultacje i uzyskiwanie opinii.
| Narzędzie | Funkcje |
| Archiplaner | Tworzenie 2D i 3D, bogata biblioteka obiektów |
| RoomSketcher | Interaktywne rysowanie, wizualizacja w 3D |
| Sweet Home 3D | Możliwość importowania własnych modeli, łatwe dodawanie mebli |
Ręczne rysowanie rzutu: Kluczowe wskazówki i techniki
Ręczne rysowanie rzutu mieszkania to umiejętność, która może być bardzo przydatna, zwłaszcza gdy nie masz dostępu do nowoczesnych narzędzi. Aby uzyskać dokładny rysunek, zacznij od dokładnych pomiarów pomieszczeń. Użyj miarki lub poziomicy, aby upewnić się, że wszystkie wymiary są precyzyjne. Następnie na papierze milimetrowym narysuj ściany, pamiętając o zachowaniu proporcji. Ważne jest, aby uwzględnić lokalizację drzwi i okien, co pomoże w późniejszym planowaniu aranżacji wnętrza.
Podczas rysowania, korzystaj z ołówka, aby móc wprowadzać zmiany w razie potrzeby. Zaczynaj od zarysu całego pomieszczenia, a następnie dodawaj detale, takie jak meble czy sprzęty. Używanie różnych kolorów do oznaczenia różnych elementów może pomóc w lepszym zrozumieniu przestrzeni. Pamiętaj, aby zachować czytelność rysunku, co ułatwi późniejsze korzystanie z niego. Staraj się również tworzyć rysunki w skali, co pozwoli na łatwiejsze planowanie przestrzeni.
Jak wykorzystać rysunki mieszkań w przyszłych projektach
Rysunki mieszkań, które stworzyłeś, mogą być nie tylko użyteczne w trakcie aranżacji wnętrza, ale także stanowić cenną bazę do przyszłych projektów. W miarę jak zmieniają się Twoje potrzeby, możesz łatwo modyfikować istniejące rzuty, dodając nowe elementy, takie jak dodatkowe pomieszczenia czy zmiany w układzie. Dzięki temu zaoszczędzisz czas i pieniądze na ponownym projektowaniu, a także zyskasz większą kontrolę nad przestrzenią, którą posiadasz.
Co więcej, rysunki te mogą być doskonałym narzędziem do prezentacji pomysłów innym, na przykład architektom czy projektantom wnętrz. Posiadając dokładne rysunki, możesz łatwiej komunikować swoje wizje i oczekiwania, co zwiększa szanse na zrealizowanie projektu zgodnie z Twoimi wymaganiami. Warto również rozważyć cyfrowe skanowanie ręcznie rysowanych planów, co pozwoli na ich dalsze edytowanie w programach graficznych oraz udostępnianie w formie elektronicznej, co jest niezwykle praktyczne w dzisiejszym świecie. Dzięki tym technikom możesz w pełni wykorzystać potencjał swojego mieszkania i dostosować je do zmieniających się potrzeb.




